激振器式脱水筛
激振器式脱水筛的振源由普通电机驱动激振器产生,该形式的脱水筛脱水能力更强,激振力型要大于振动电机型可使大颗粒物料轻松跳跃筛孔避免堵料现象,采用6极普通电机效果极佳,订购时一定要联系我们,把需求提供详细,才能为您准确的价格。真机图片
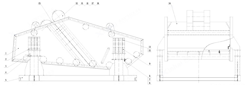
结构工作原理
激振器式脱水筛采用一种自同步式惯性式激振器。激振器的两根转轴分别由两台特性相近的电动机驱动,依靠振动同步原理使两个带偏心块的转轴实现等速反向回转,从而获得激振力。在很多激振设备上应用广泛,也可以说是稀油激振器,箱体加油激振器运转性能高的特点。
技术优势
1.噪音小、维修方便。
2.结构合理、坚固耐用。
3.脱水效果好,安全可靠。
4.筛分处理能力大,筛分效率高。
5.重量轻,拆装方便,便于维护、无突发性段簧。
厂家叮嘱
安装前的准备
⒈检查电机标牌是否与要求相符。
⒉用500伏兆欧表测量绝缘电阻,其值应对定子绕组进行干燥处理,烘干温度不能超过120℃。
⒊检查电机各紧固件,谨防松动。
⒋检查电机表面有无损坏、变形。
⒌检查是否转动灵活,若有异常,应排除。
⒍检查电源,是否缺相,并空载运行5分钟。
安装与调整
⒈电机应紧固在安装面上,安装面必须光滑、平整。
⒉电机可水平安装。
⒊电机引线采用四芯橡胶电缆YZ-500V,接电源时引出线电缆不允许有急折,并与振动体可靠固定。
⒋电机应有可靠的接地,电机内有接地装置,引线端有标志,亦可利用底脚坚固螺栓接地。
⒌激振力的调整。
使用与维修
⒈本机应装设电气保护装置。
⒉本机运行初期,每天至少检查地脚螺栓一次,防止松动。
⒊当电机旋转方向不符合要求时,调整电源相序即可。
⒋电机应保证润滑良好,每运行二周左右补充锂基润滑脂(ZL-3)一次,加油时,通过油杯加入适量锂基润滑脂。当采用密封轴承时,电机没有安装油杯。
⒌本机累计运行1500小时后,应检查轴承,若有严重损伤时应立即更换。
⒍本机停置较长时间后再次使用时,应测量绝缘电阻,用于500伏兆欧表测量,应大于0.5兆欧。
日常保养
⒈启动前:
⑴检查粗网及细网有无破损
⑵检查运输支撑是否拆除。
⑴注意有无异常杂音
⑵电流是否稳定
⑶振动有无异状
⒊使用后:每次使用完毕即清理干净.
定期保养
定期的检查粗网,细网和弹簧有无疲劳及破损,机身各部位是否因振动而产生损坏,需添加润滑油的部位必须加油润滑。
特种筛分筛选机
- 微粉筛
- 双质体弛张筛
- 自动清理振动筛
- 高频五层叠层筛
- 污泥砂浆尾矿滚筒筛
- 辊筛
- 砂石骨料振动筛
- 粉末振动筛
- 分级筛
- 悬挂式高频筛
- 焦炭专用筛
- 水泥振动筛
- 弛张筛
- 石灰筛
- 水平式三轴椭圆振动筛
- 螺旋筛
- 滚动筛
- 圆筒筛
- 垃圾筛
- 波动筛
- 复振筛
- 垃圾滚筒筛
- 滚动筛
- 选矿机
- 滚筒落砂机
- 大型滚筒筛石机
- 德瑞克叠层筛
- 电磁叠层振动筛
- 卧式气流筛
- 立式气流筛
- 平台式振动清砂机
- 滚筒筛土机
- 砂金滚筒筛
- 脱水滚筒筛
- 垃圾滚筒筛选机
- 柴油机滚筒筛石机
- 生活垃圾弹跳筛风机
- 垃圾碟盘滚轴筛
- 六棱型滚筒筛分机
- 辊齿状滚轴筛分机
- 螺旋筛分机
- 滚轴波动筛
- 滚轴交叉筛
- 滚轴筛
- 移动式滚筒筛
- 正弦筛
圆振动筛分筛选机
- 摇摆筛-摇摆筛厂家-方形摇摆筛-不锈钢摇摆筛-摇摆筛批发-奥创机械
- 圆振动筛振动筛-砂石分离-振动筛厂家-砂石骨科—破碎机.-新乡实体厂家
- 聚丙烯振动筛
- 振动筛砂机
- 冶金振动筛
- 矿山振动筛
- 单轴振动筛
- 矿山振动筛
- 块矿筛
- 煤矿振动筛
- 圆振筛
- 圆振型弛张筛
- 焦化筛
- 焦化筛
- 双层编织网式圆振动筛
- 石英砂棒条圆振动筛
- YK1545圆振动筛
- 轻型便宜圆振动筛
- YK棒条式圆振动筛
- 水平式三轴椭圆振动筛
- 双轴椭圆振动筛
- 椭圆弛张振动筛
- 偏心块式圆振动筛
回转摇摆筛分筛选机
- 摇摆筛-微分筛分-石英砂筛分-新乡摇摆筛实体厂家-微粉精度高-方形摇摆筛-奥创机械
- 摇摆筛-微分筛分-方形摇摆筛-石英砂筛分-新乡摇摆筛实体厂家-微粉筛分-奥创机械
- 石子筛
- 碳素筛
- 方摇
- 圆摇
- 吊式高频筛
- 方摇筛
- 长方形摇摆筛
- 不锈钢摇摆筛
- 圆盘摇摆筛
- 方摇筛
- 尿素平面旋回筛
- 陶瓷磨料摇摆筛分机
- 多层方形摇摆分级筛
- 纤维素摇摆回转筛粉机
- 柠檬酸摇摆筛粉机
- 饲料平面回转筛
- 石英砂方形摇摆筛
- 糖,盐业专用摇摆筛
- 平面摇摆回转筛
精细圆形筛分筛选机
- 旋振筛-圆振筛-精细筛分设备-旋振筛价格-三次元旋振筛-振动筛厂家-奥创机械
- 摇摆筛-摇摆筛的原理-摇摆筛的结构-摇摆筛的价格-摇摆筛那家好-摇摆筛厂家
- 旋振筛-圆振筛-精细筛分设备-旋振筛价格-三次元旋振筛-振动筛厂家-奥创机械
- 精细筛分-新乡振动筛_直线筛_旋振筛_振动筛厂家_-三次元振动筛-奥创机械
- 摇摆筛-微分筛分-石英砂筛分-新乡摇摆筛实体厂家-微粉精度高-奥创机械
- 蛋白粉摇摆筛
- 不损茶叶摇摆筛
- 面粉无尘投料筛分
- 红薯淀粉筛粉机
- 多层圆盘振动筛
- 圆盘移动筛
- 食品振动筛
- 振荡筛
- 中药粉振动筛
- 硅微粉除杂机
- 煤焦油过滤机
- 花生粉除渣筛分机
- 不锈钢粉体颗粒筛
- 磨料粉末超声波振动筛
- 陶瓷浆液除杂筛分机
- 豆浆液体筛分机
- 塑料防腐筛分机
- 粉末筛
- 微型粉末筛粉机
- 不锈钢圆盘振动筛
- 刷子筛
- 颗粒振动筛
- 颗粒振动筛
- 淀粉振动筛
- 超声波振动筛
- 果汁过滤筛机
- 味精鸡精振动筛
- 玻璃粉筛粉机
- 聚丙烯塑料振动筛
- 超声波旋振筛
- 氧化铝振动筛分机
- 洗衣粉直排筛
- 三次元旋振筛
- 圆形高频振动筛
相关新闻
- 2020-11-23 振动筛摆动式强烈振动原因及处理办法
- 2020-09-26 我们常说的淀粉筛是那种筛粉机
- 2022-04-25 提升机-斗式提升机-斗式提升机厂家-垂直提升机-奥创机械
- 2020-06-11 为什么厂家要定制自己的直线振动筛标准
- 2020-11-22 机制砂制砂生产线工艺流程振动筛分机的重要位置
- 2021-03-12 乳胶漆滤渣过滤机使用的是全不锈钢筛分机
- 2022-05-13 激振器-发热-轴承损害-如何延长激振器的寿命-激振器频繁损坏怎么
- 2020-10-05 甘肃没有直接的振动筛厂家,只有经销商
- 2020-01-01 物料性质对圆振动筛筛分效果的影响
- 2021-12-08 铸造落砂机怎么处理能应在在铜铸件与铝铸件






